Комплекс подготовки поверхности металлоконструкций SPK GROUP


Линия очистки, окраски и сушки покрытия на металлоконструкциях от SPK GROUP установлена в отапливаемом цеховом помещении производственной площадки в соответствии с климатическими требованиями УХЛ4.
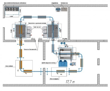
Оборудование линии:
- Транспортная система — подвесной непрерывный конвейер на монорельсе с ручным перемещением, замкнутого типа..
- Дробеструйная камера — проходная конструкция на металлокаркасе, обшита сэндвич-панелями. В камере поверхность изделий очищается при струйном обливе мелкой дробью из специальных пистолетов. Внутренние поверхности камеры (потолок, стены, сервис-дверь изнутри) защищены резиновым покрытием. Для светильников используется ударопрочное стекло.
В проходной камере въездные проёмы закрыты роллетными воротами 2500 х 3500 мм. Сервис-дверь оборудована доводчиком, окном, защитной футеровкой.
ВФУ 17 000 м³/час и трубопроводы системы рециркуляции воздуха обеспечивают воздухообмен.
Дробь собирается напольными скребковыми конвейерами. Установлено 4 комплекта поперечных и продольных конвейеров.
- Камера окрашивания и термосушки — проходная конструкция на металлокаркасе, обшита сэндвич-панелями. В камере на металлоконструкции наносится покрытие, после чего покрытие сушится при повышенной температуре.
Для светодиодных светильников используется взрывобезопасная конструкция.
В проходной камере въездные проёмы закрыты роллетными воротами. Сервис-дверь оборудована доводчиком, смотровым окном.
ВФУ 18 000 м³/час с кассетными фильтрами класса G4 обеспечивает воздухообмен. Используется взрывобезопасная защита двигателя и искрогашение рабочих колёс.
Для контроля концентрации опасных веществ установлены газоанализаторы.
Подключение потребителей сжатого воздуха производится через точки быстрого доступа с локальными фильтрами и осушением.


