Обитаемая дробеструйная камера в уличном исполнении SPK 24.8.8
| 
 Размеры  | 
|||||||||
| 
 Внутренние размеры  | 
 3500x3500x3000mm 
  | 
 Внешние размеры  | 
 3700x7150x3700mm 
  | 
||||||
| 
 Поток воздуха  | 
 Направлен вниз  | 
 Вытяжка  | 
 Через три канала в каждой камере, 4 шт  | 
||||||
| 
 Вытяжка ч-з пол  | 
|||||||||
| 
 Всего каналов  | 
 3 шт.  | 
 Размер канала для сбора дроби  | 
 3100х1120 mm/ канал  | 
||||||
| 
 Ряды решеток, шт.  | 
 3 ряда  | 
 Решетки  | 
 плоские из стали  | 
||||||
| 
 Покрытие решеток  | 
 Оцинковка  | 
 Максимал. нагрузка (kg/ m3)  | 
 1200  | 
||||||
| 
 Кабина  | 
|||||||||
| 
 Форма  | 
 Выпуклая  | 
 Конструкция  | 
 металлический силовой каркас  | 
||||||
| 
 Главная дверь  | 
|||||||||
| 
 Количество створок  | 
 Ворота распашные  | 
 Размеры дверей  | 
 2300 х 2500 (Ш х В)  | 
||||||
| 
 Материал  | 
 Оцинкованная сталь  | 
 Резина  | 
 6мм  | 
||||||
| 
 Стенные панели  | 
|||||||||
| 
 Толщина Панели  | 
 100 мм  | 
 Толщина стали  | 
 0,6 мм  | 
||||||
| 
 Наполнитель в панелях  | 
 Минеральная вата  | 
 Плот-сть наполнителя (кг/ кв.м)  | 
 19,0  | 
||||||
| 
 Сервисная дверь  | 
|||||||||
| 
 Количество дверей  | 
 2  | 
 Размеры дверей  | 
 800х2000(ШхВ)  | 
||||||
| 
 Расположение  | 
 Справа  | 
 Антипаниковая система - аварийный выход с освещением  | 
 Резина толщ. 6 мм  | 
||||||
| 
 Крыша камеры  | 
 
  | 
||||||||
| 
 Форма  | 
 Прямая  | 
 Стальная конструкция  | 
 Да  | 
||||||
| 
 Каркас  | 
 Сталь D8  | 
 Материал панели крыши  | 
 Минер. вата  | 
||||||
| 
 Освещение  | 
|||||||||
| 
 Верхний свет  | 
 12 плафонов  | 
 Каркас крепления светильников  | 
 Стальной  | 
||||||
| 
 Нижний свет  | 
 -  | 
 Выпрямитель  | 
 Одно действие на 2 лампы  | 
||||||
| 
 Группа подготовки воздуха  | 
|||||||||
| 
 Обшивка  | 
 Каркас моноблока - из стальных панелей  | 
 Управление потоками воздуха  | 
 Пневматическая заслонка  | 
||||||
| 
 Кол-во генераторов притока  | 
 Моноблок  | 
 Кол-во генераторов вытяжки  | 
 Моноблок  | 
||||||
| 
 Вентилятор приточной группы  | 
 Обладает двойным действие  | 
 Вытяжной вентилятор  | 
 Обладает двойным действие  | 
||||||
| 
 Siemens  | 
 Siemens  | 
||||||||
| 
 Общая произв-ность: 16 000 м³/ч  | 
 Общая производит-сть: 16 000 м³/ч  | 
||||||||
| 
 Давление вентилятора 700Па.  | 
 Давление вытяжного вентилятора 700Па.  | 
||||||||
| 
 Система регенерации дроби  | 
|||||||||
| 
 Регенерация  | 
 Сепаратором  | 
 Агрегатный блок Дробеотделитель лабиринтного типа. Один вибросепаратор. Напорные рукава 32 мм диаметром, сопло Вентури 8 мм диаметром, Система дробедвижения  | 
 2 мм -ячейки сита. Бункер-накопитель с объемом 200 литров. Напорный агрегат объемом 200 литров модель DBS-200. Вентили ДУ  | 
||||||
| 
 Система сбора дроби  | 
|||||||||
| 
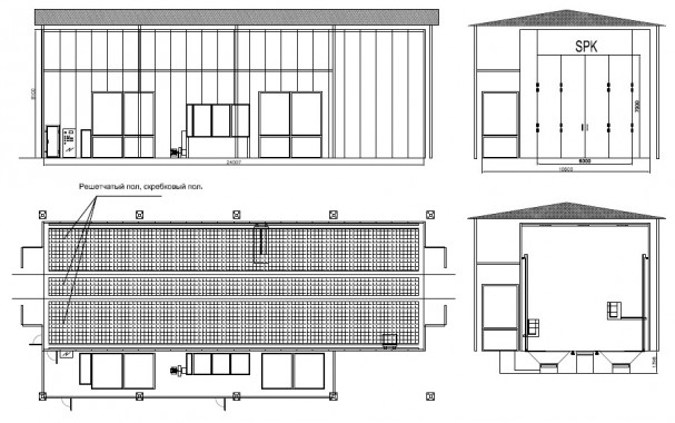
 Скребковый пол  | 
 Скребковый пол, снабженный грейферными скребками. Линейка сбора абразива шириной 1,12 м установлена вдоль стен камеры. Высота пола 180мм. Решетчатый настил пола. Пневматический привод скребков (на 1 линейку).  | 
 Фильтр вытяжки  | 
 
  | 
||||||
| 
 Система контроля технологических режимов  | 
|||||||||
| 
 Управление при использовании  | 
 Реле  | 
 
  | 
 
  | 
||||||
| 
 Система перемещения операторов  | 
|||||||||
| 
 Полнорешетчатый помост  | 
|||||||||
| 
 Питание  | 
|||||||||
| 
 Питание двигателя  | 
 3* 380 вольт 50 Гц  | 
 - освещения  | 
 220 вольт 50 Гц  | 
||||||
| 
 Общая мощность 22 кВт  | 
|||||||||
Внутренние габариты камеры (ДхВхШ): 3500x3500x3000 mm
Внешние габариты (ДхВхШ) : 3700x7150x3700 mm
Габариты ОСК








