Камера окраски для жд вагонов (возможность разделения) на 7 и 15 м SPK-22.6.6.5
|
Размеры |
||||||
|
Внутренние размеры (ДхВхШ) |
22000x6000x6500мм |
Внешние размеры (ДхВхШ) |
22290x7890x7300мм |
|||
|
Поток воздуха |
Исходящий сверху вниз |
Вытяжка |
Через канал в основании |
|||
|
Основание |
||||||
|
Кол-во каналов |
2канала |
Р-р канала |
760x13800/5750 мм/канал |
|||
|
Кол-во решеток |
4ряда (итого 34шт.) |
Материал решеток |
Оцинкованная сталь. 30х4мм - пластины; 10мм - скрученные пруты. |
|||
|
|
|
Максим. нагрузка |
500-800кг/м3 |
|||
|
Кабина |
||||||
|
Структура кабины |
Ровная |
Присутствие стальной конструкции |
Имеется |
|||
|
Панели сенные |
Утепленные «сендвич -панели» с толщиной 70мм, состоящие из II-х металлических листов. Материал утеплителя минеральная вата RW |
Толщина листов |
0,43мм
|
|||
|
Плотность заполнения минеральной ватой |
160г/м3 |
|
|
|||
|
Въездные ворота |
||||||
|
Кол-во ворот |
двое |
Размеры дверей |
4500x5500мм (ШхВ) |
|||
|
Тип ворот |
Роликовые электрические |
|
|
|||
|
Сервисная дверь |
||||||
|
Кол-во |
Три двери |
Размеры |
700x2000мм |
|||
|
Расположение |
Справа |
Структура смотрового окна |
Герметизировано резиновым уплотнителем |
|||
|
Крыша |
Из оцинкованных стальных пластин |
|||||
|
Структура крыши |
Прямая |
Присутствие стальной конструкции |
+ |
|||
|
Конструкция потолка с закрепленными потолочных фильтров |
Каркас из D8-стали |
Внешний вид |
Окрашенная |
|||
|
Исполнение панелей крыши |
RW-панель |
Потолочные фильтры |
Мод.SP-600 G |
|||
|
Осветительная система |
||||||
|
Верхний свет |
14 плафонов по четыре лампы с 2-ух сторон = ит. 112 ламп по 36Вт (Philips) |
|
|
|||
|
Нижний свет |
33 плафона по четыре лампы с 2-ух сторон = ит. 264 лампы по 36Вт (Филипс) |
Направление света |
Вертикальное
|
|||
|
Выпрямитель |
единое действие для 2-ух ламп |
Каркас для крепления светильников |
Из стали |
|||
|
Общая мощность системы освещения |
13536Вт |
|
|
|||
|
Группы притока и вытяжки для 15м |
||||||
|
Размещение генераторов |
Справа |
Конструкция генераторной группы фильтров |
Квадратная оцинкованная конструкция, выполненная из стали |
|||
|
Обшивка групп фильтров притока, вытяжки |
каркас группы вытяжки построен из панелей RW каркас группы притока - из панелей RW
|
Регулировка потоков воздуха |
Пневматическая |
|||
|
Колич-во генераторных групп притока |
II |
Колич-во генераторных групп вытяжки |
II |
|||
|
Направление потока приточного воздуха |
Через основной воздуховод |
Направление потока воздуха вытяжки |
Через основной задний воздуховод |
|||
|
Тип приточного вентилятора |
Центробежный вентилятор II-ного действия |
Тип вытяжного вентилятора |
Центробежный вентилятор II-ного действия |
|||
|
Мод.Siemens 4.5M (Германия) |
Мод.Siemens -710-H (Германия) |
|||||
|
2по7,5кВт |
11кВт |
|||||
|
Произв-ность: 84000м³/ч |
Произв-ность 80000м3/ч |
|||||
|
|
|
|||||
|
Управление воздушным притоком |
|
Управление вытяжным воздушным потоком |
Оснащен ручной заслонкой |
|||
|
Воздуховод, предназначенный для забора |
|
Воздуховод предназначенный для выброса |
Четыре прямых, канала. 1000х1000х1000мм. одноколенный канал 90°, одноколенный канал 30° |
|||
|
Группы притока и вытяжки для 7 м |
||||||
|
Положение генераторов |
Расположение справа |
Конструкция генераторной группы |
Квадратной формы оцинкованная стальная конструкция |
|||
|
Обшивка групп притока и вытяжки |
каркас группы вытяжки выполнен из RW-панелей каркас группы притока выполнен из RW- панелей
|
Регулировка потоков воздуха |
Пневматическая |
|||
|
Кол-тво приточных генераторных групп |
одна |
Кол-тво генераторных вытяжных групп |
одна |
|||
|
Направление воздухопотока притока |
Через основной воздуховод |
Направление воздухопотока вытяжки |
Через основной задний воздуховод |
|||
|
Тип вентилятора притока |
Центробежный вентилятор II-ого действия |
Тип вытяжного вентилятора |
Центробежный вентилятор II-ного действия |
|||
|
Siemens -630-H (Германия) |
Siemens -710-H (Германия) |
|||||
|
2х7,5кВт |
11кВт |
|||||
|
Производительность: 50000м³/ч |
Производительность: 40000м³/ч |
|||||
|
Управление воздушным притоком |
|
Управление вытяжным воздушным потоком |
Оборудован ручной заслонкой. |
|||
|
Воздуховод, предназначенный для забора |
|
Воздуховод, предназначенный для выброса |
4прямых канала размером 1000х1000х1000мм. 1-коленный канал 90°, одноколенный канал 30° |
|||
|
Отопление |
||||||
|
Способ отопления |
Газовая горелка |
Топливный генератор |
3штуки |
|||
|
Горелка |
RS5, одноступенчатая |
Тепловая мощность |
260000кКал/ч |
|||
|
Теплообменник |
Многотактовый: отверстия анти-взрывные |
Топливный генератор |
260кВт/ч |
|||
|
Выхлопная труба |
Четыре штуки |
Материал выхлопной трубы |
Из оцинкованной стали |
|||
|
Фильтрация |
||||||
|
Фильтр приточной группы |
Основной фильтр карманной формы и потолочный фильтр |
Фильтр вытяжки |
Стекловолоконный/ угольный фильтры |
|||
|
Система контроля |
||||||
|
Управления |
С помощью реле |
|
|
|||
|
Запуск генератор притока |
Есть |
Запуск генератора вытяжки |
+ |
|||
|
Панель управления |
Режимы: окрашивание, выключатель для освещения, выключатель для питания, аварийная остановка, таймер/ контроллер темп. в кабине камеры, индикаторы и контроллеры для режимов работ.
|
|||||
|
Питание |
||||||
|
Эл-питание двигателя |
3х380В, 50Гц |
Эл-питание освещения |
220вольт 50Гц |
|||
|
Общая мощность ОСК 93кВт |
||||||
|
Другое |
||||||
|
Стекло |
Толщиной 5мм, закаленное |
|
|
|||
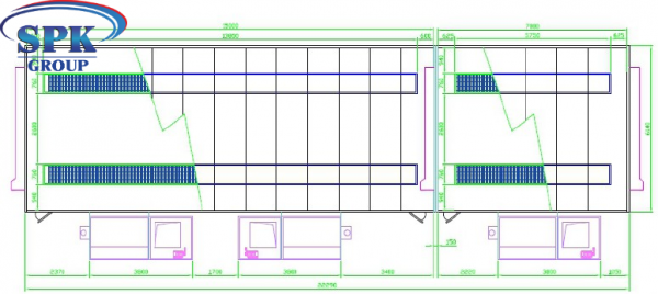
Внутренние габариты камеры (ДхВхШ): 22000x6000x6500 мм
Внешние габариты (ДхВхШ) : 22290х7890х7300 мм
Габариты ОСК



