Окрасочно-сушильная камера для грузовиков SPK-12.6.5.
Спецификация оборудования.
| 
 Размеры окрасочной камеры  | 
|||||
| 
 Внутренние размеры  | 
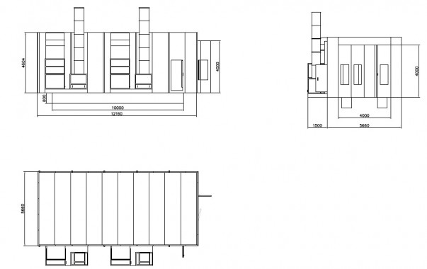
 12000x5500х4300mm  | 
 Внешние размеры  | 
 12160x5600x4604mm  | 
||
| 
 Вытяжка  | 
 Ч-з пол  | 
 Направление воздушного потока  | 
 Сверху вниз  | 
||
| 
 Вытяжка  | 
|||||
| 
 Количество каналов  | 
 2 каналов  | 
 Размер канала  | 
 10000х770mm/канал  | 
||
| 
 Количество решеток  | 
 2 рядов решеток  | 
 Решетки  | 
 полосы из стали, плоские+10мм скрученная арматура из стали, покрытие - оцинковка  | 
||
| 
 Максим. нагрузка  | 
 2.500 кг /м.кв  | 
||||
| 
 Кабина оск  | 
|||||
| 
 Конструкция  | 
 Каркас силовой  | 
 Конструкция из стали  | 
 Присутствует  | 
||
| 
 Главная дверь (1 шт)  | 
|||||
| 
 Размеры ворот  | 
 4.000х4.000 (ШхВ)  | 
||||
| 
 Материал  | 
 Сталь оцинкованная  | 
 Разделение камеры  | 
 Присутствует  | 
||
| 
 Структура окон  | 
 нет  | 
 Уплотнение  | 
 Теплоизоляционной резиной  | 
||
| 
 Стеновые панели  | 
|||||
| 
 Толщина панели,мм  | 
 80  | 
 Толщина стали,мм  | 
 1  | 
||
| 
 Наполнитель панели  | 
 Минеральная вата  | 
 Характеристики наполнителя  | 
 Негорючий и пропитан антисептиком  | 
||
| 
 Плотность заполнения  | 
 112 кг/м³  | 
||||
| 
 Сервисная дверь  | 
|||||
| 
 Кол-во дверей  | 
 Одна дверь  | 
 Размер дверей  | 
 800 х 2.000(ШхВ)  | 
||
| 
 Вид двери  | 
 выхлопная  | 
 Форма и структура окна  | 
 овальное, с уплотнением из термоизоляционной резины  | 
||
| 
 Крыша  | 
|||||
| 
 Форма и конструкция  | 
 Прямая, сэндвич панели 50 мм.  | 
 Стальная конструкция  | 
 Стальной силовой каркас  | 
||
| 
 Конструкция потолка с закреплением фильтров потолка  | 
 Каркас из стали D8  | 
 Покрытие каркаса  | 
 +, порошковая покраска  | 
||
| 
 Материал панелей  | 
 Минеральная вата  | 
 Модель фильтров потолочных  | 
 SP -600 G  | 
||
| 
 Освещение в ОСК  | 
|||||
| 
 Свет верхний (45 градусов)  | 
 16 плафонов х4 лампы, всего 64 лампы Х 36Вт  | 
 Материал каркаса для светильников  | 
 Сталь  | 
||
| 
 Свет нижний (встроенный в панели)  | 
 20 плафона * 4 лампы. Всего 80 ламп Х 36Вт  | 
 
  | 
 
  | 
||
| 
 Выпрямитель  | 
 1 действие для двух ламп  | 
 
  | 
 
  | 
||
| 
 Группы притока и вытяжки (с воздухообменом 120 крат/ч)  | 
|||||
| 
 Расположение генератора  | 
 По левой стороне  | 
 Конструкция генераторной группы  | 
 стальная конструкция в форме квадрата  | 
||
| 
 Обшивка обеих групп  | 
 Теплоизоляционные панели  | 
 Регулировка потоков воздуха  | 
 Автоматическая заслонка  | 
||
| 
 Количество генераторов приточной и вытяжной групп  | 
 По 2 генератора  | 
||||
| 
 Поток воздуха притока  | 
 Имеет направление - сверху вниз  | 
 Воздушный поток вытяжки  | 
 Имеет направление - снизу вверх  | 
||
| 
 Характеристика вентилятора притока  | 
 Вентилятор центробежный двойного действия  | 
 Характеристика вытяжного вентилятора  | 
 Вентилятор центробежный двойного действия  | 
||
| 
 Марка - Siemens  | 
 Марка - Siemens  | 
||||
| 
 2х 5,5 кВт  | 
 Давление 726 Па.  | 
||||
| 
 Давление 780Па.  | 
 1х 7,5кВт  | 
||||
| 
 Пр-ность: 40 000 м3/час  | 
 Пр-ность: 40 000 м3/час  | 
||||
| 
 Управление притоком воздуха  | 
 Автоматическая заслонка  | 
 Управление вытяжным воздушным потоком  | 
 Оборудован ручной заслонкой  | 
||
| 
 Подогрев воздуха в оск  | 
|||||
| 
 Способ подогрева  | 
 вода  | 
 Количество теплообменников  | 
 2 шт.  | 
||
| 
 Фильтрация камеры  | 
|||||
| 
 Фильтр вытяжки  | 
 Конструкция: Стекловолоконный и угольный фильтры  | 
 Фильтр притока  | 
 Основной фильтр имеет форму кармана; + Потолочный фильтр  | 
||
| 
 Система перемещения маляров в покрасочном боксе  | 
|||||
| 
 Лифт площадки  | 
 две  | 
 Питание  | 
 3х380 Вт/50Гц  | 
||
| 
 Система контроля технологических режимов. IP 65  | 
|||||
| 
 Управление  | 
 Реле контроллер  | 
||||
| 
 
 Панель управления  | 
 Окраска; возрастающее тепловое распыление; сушка до 80-ти гр. и регулировка времени, выключатели: освещения и питания; индикатор отказа; термостат; метр часов и чрезвычайная остановка;  | 
||||
| 
 Питание  | 
|||
| 
 Питание двигателей  | 
 3х380 Вт/50Гц  | 
 Питание освещения  | 
 220 Вт/50Гц  | 
| 
 Общая мощность 39 кВт  | 
|||
Внутренние габариты камеры (ДхВхШ): 12000x5500х4300 mm
Внешние габариты (ДхВхШ) : 12160x5600x4604 mm
Габариты ОСК

