Окрасочно-сушильная камера тупикового типа SPK-18.6.5 РОССИЯ
|
ОКРАСОЧНО-СУШИЛЬНАЯ КАМЕРА ТУПИКОВОГО ТИПА SPK-18.6.5 РОССИЯ |
|
|
Размеры |
|
|
Внутренние р-ры камеры |
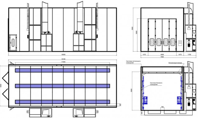
18000x6000x5000 мм |
|
Внешние размеры |
18144x7894x5600 мм |
|
Направление воздушного потока |
Вниз |
|
Вытяжка |
В стенах ОСК |
|
Вытяжка через приямок |
|
|
Каналы |
3 |
|
Число рядов решеток |
3 ряда |
|
Конструкция решеток |
Стальные плоские полосы со стальной скрученной арматурой 10 мм толщиной |
|
Размер каждого канала |
17000х760 мм |
|
Покрытие решеток |
Оцинковка |
|
Кабина |
|
|
Конструкция кабины |
Выпуклая |
|
Стальная конструкция |
Каркас силовой |
|
Панели стенные |
|
|
Толщина стали в панелях (mm) |
0.55 |
|
Наполнитель |
Вата минеральная |
|
Плотность |
19 грамм/ м3 |
|
Толщина Панели (mm) |
80 |
|
Сервисная дверь кабины |
|
|
Габариты двери (ШхВ) |
800*2000 мм |
|
Расположение |
Справа |
|
Число дверей |
2 |
|
Окна |
Герметизация резиновыми уплотнителями, окна овальные |
|
Основная дверь данной ОСК |
|
|
Структура |
2 шт. распашные ворота |
|
Размеры (ШхВ) |
5000x5000 |
|
Материал |
Сталь оцинкованная |
|
Крыша |
|
|
- выполнена из стальных оцинкованных пластин |
|
|
Панели |
Материал исполнения минеральная вата |
|
Структура крыши |
Прямая |
|
Потолок |
каркас стальной (D8)
|
|
Стальная конструкция |
Силовой каркас |
|
Потолочные фильтры |
SP-600G |
|
Осветительная система в камере |
|
|
Освещение верхнее |
24 плафона Х 4 лампы = 96 ламп по 36 Вт каждая |
|
- нижнее |
24 плафона Х 4 лампы = 96 ламп по 36 Вт каждая |
|
Действие выпрямителя |
Одно действие для каждых двух ламп |
|
Каркас крепления для светильников |
Из стали |
|
Общая мощность |
6 912 Вт |
|
Параметры группы притока/ вытяжки |
|
|
Размещение генераторов |
Справа |
|
Число генераторных групп вытяжки /притока |
По два |
|
Параметры 2-ного центробежного вентилятора в приточной группе |
|
|
Мод. вентилятора |
Siemens 4.5M |
|
Производит-ность (в куб. /час) |
74 000 |
|
Мощ-сть , кВт |
2*5.5 |
|
Давление |
780Па |
|
Параметры 2-ного центробежного вентилятора с ручной заслонкой в вытяжной группе фильтров |
|
|
Модель |
Siemens-710-H |
|
Производ-ность (в куб.м/час) |
74 000 |
|
Мощ-сть, кВт |
1*7,5 |
|
Давление |
Давление 726Па. Привод ременной |
|
Система фильтрации |
|
|
Конструкция фильтра притока |
Фильтр потолка и основной фильтр |
|
Хар-ка фильтра вытяжки |
Фильтры: угольный и стекловолоконный |
|
Система подогрева |
|
|
Способ подогрева |
1. Газовая/ дизельная горелка, 2. паровой/, водяной теплообменник с догревом |
|
Модель |
R5 |
|
Количество |
2 теплообменника |
|
Производительность, кКал/час |
330.000 х 2 |
|
Конструкция теплообменника |
Антивзрывчатое отверстие и Мультицикл |
|
Дымоход |
- |
|
Контроль технологических режимов |
|
|
На панели управления расположены следующие переключатели: |
- Окрашивание; - метр часов; - индикатор отказа; -сушка до 80°С, - регулировка времени сушки; - выключатель освещения; - термостат; - нарастающее температурное распыление; - выключатель питания; - чрезвычайная остановка |
|
Управление |
Реле |
|
Питание |
|||||
|
Эл-питание двигателя |
380 вольт * 3, 50Гц |
Электропитание освещения |
220 вольт 50 Гц |
||
|
Мощность общая 46,6 кВт |
|||||
|
Система пожаротушения Буран50 |
|||||
|
Срабатывание в автоматическом режиме |
Порошковая система пожаротушения |
||||
Вытяжка: В стенах ОСК
Внутренние габариты камеры (ДхВхШ): 18000x6000x5000 мм
Внешние габариты (ДхВхШ) : 18144x7894x5600 мм
Габариты ОСК

