Промышленная подготовительная камера для спецтехники SPK-12.7.6
|
Общие характеристики |
|||||||
|
Размеры внутренние |
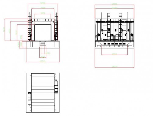
12000x 7000х 6000 мм |
Размеры. внешние |
12200x 8710x 6840 мм |
||||
|
Количество секций |
1 |
Приямок |
11000х 1200х 1300 мм |
||||
|
Поток воздуха |
Направляется вниз |
Вытяжка |
Проходит сквозь пол |
||||
|
Вытяжка |
|||||||
|
Число каналов в данной вытяжке |
2 канала |
Размер каждого канала |
2250 х 12000 mm |
||||
|
Число рядов решеток |
3 ряда |
Описание материала решеток |
Каждая решетка представляет собой 10-мм скрученную арматуру стальную, а также плоские полосы, произв. из стали |
||||
|
Покрытие |
Оцинкованное |
Нагрузка max на решетку |
1.000 кг/ кв м |
||||
|
Описание кабины |
|||||||
|
Каркас |
Силовой каркас |
Материал конструкции |
Сталь |
||||
|
Главная дверь. 2 шт |
|||||||
|
Тип |
Рулонный |
Размеры ворот |
7000х5000 (ШхВ) |
||||
|
Материал |
Комбинированный: алюминий + пластик |
Разделение камеры |
Не разделяется |
||||
|
Структура окон |
Прямоугольные, легкосбрасываемые |
Уплотнение |
Резина, а также теплоизоляция |
||||
|
Панели в стенах |
|||||||
|
Толщина панели (mm) |
60 |
Толщ. стали (mm) |
0,6 |
||||
|
Наполнитель в панелях |
Вата минерал. |
Описание наполнителя панелей |
Негорючий и с антисептиком |
||||
|
Плотность |
32.0 кг/м 3 |
|
|
||||
|
Дверь сервисная (аварийная) |
|||||||
|
Количество дверей |
2 шт. |
Размер |
800х2.000 (ШВ) |
||||
|
Расположение |
1 - справа, 1 - слева |
Структура окна |
Прямоугольное со скругленными углами и резиновым уплотнением |
||||
|
Крыша. |
|||||||
|
Структура |
Крыша прямая, в основе - сэндвич-панели |
Конструкция стальная |
Стальной силовой каркас |
||||
|
Материал конструкции потолка, где крепятся фильтры потолка |
Каркас из стали |
Каркас покрывается |
порошковой покраской |
||||
|
В основе панелей крыши |
Минерал. вата |
Марка фильтров потолка |
SP - 600 G |
||||
|
Освещение 1.100 Люкс |
|||||||
|
Верхний свет (45 град-в) |
4 лампы по 36 Вт в каждом из 16 плафонов
|
В основе каркаса крепления светильников |
Сталь |
||||
|
Боковой свет (в стеновых панелях) |
2 лампы по 18 Вт в каждом из 22 плафонов |
Выпрямитель |
I действие на II лампы |
||||
|
Боковой свет (встроенный в приямок) |
12 плафонов Х2 лампы по 18 Вт |
|
|
||||
|
Мощ-сть общ. |
1.458Вт |
|
|
||||
|
Хар-ки групп притока/ вытяжки |
|||||||
|
Генератор. Расположение |
С 1-ой стороны |
Конструкция группы |
Квадратная, в основе - сталь |
||||
|
Обшивка гр. притока и вытяжки |
Сэндвич-панели |
Метод регулировки |
Автоматическая заслонка с регулируемым приводом |
||||
|
Число генераторов притока |
2 генератора |
Число генераторов вытяжки |
2 |
||||
|
Приток имеет направление |
Сверху вниз регулировкой направления |
В вытяжке воздушный поток имеет направление |
Вверх |
||||
|
Приточный II-ной вентилятор |
|
Вытяжной центробежный II-ной вентилятор |
|
||||
|
Искро- и взрывозащищенное исполнение (ЕХ) |
Искро- и взрывозащищенное исполнение (ЕХ) |
||||||
|
Значение мощ-сти: 7,5 кВт |
Значение мощ-сти: 7,5 кВт |
||||||
|
Произв-сть вентилятора: 64 000 м куб/ч |
Производит-сть вентилятора: 64000 м куб/ч |
||||||
|
Давление 760Па. |
Давление 731Па. Оборудуется ременным приводом |
||||||
|
Управление и регулировка притока воздуха |
Автоматической заслонкой |
Управление и регулировка вытяжного потока воздуха |
Автоматической заслонкой |
||||
|
Подогрев воздуха |
|||||||
|
Максимальная тепловая нагрузка без рекуператоров |
1059 кВт |
Максимальная тепловая нагрузка при наличии рекуператоров |
635 кВт |
||||
|
Способ |
Горелка дизельная |
Количество теплообменников |
два |
||||
|
Модель горелок |
RL 34 MZ |
Производительность горелок |
2 х 395 кВт (790 кВт) |
||||
|
Теплообменник |
в конструкции: антивзрывчатое отверстие +мультицикл |
||||||
|
Фильтрационная система камеры |
|||||||
|
Конструкция фильтра в притоке |
Основной карманчатый фильтр; фильтр потолка |
Конструкция фильтра вытяжки |
Стекловолоконный, также угольный фильтры, краскофильтр и кассетный фильтр |
||||
|
IP 65. Система управления технологическими режимами. |
|||||||
|
Описание панели управления - 2 ед. |
Окрашивание; метр часов; тепловое распыление возрастающее; сушка до 50-ти градусов, регулировка сушки с управлением временем; выключатели: света/ |
||||||
|
Управляется |
реле |
||||||
|
Описание системы пожаротушения |
|||||||
|
Порошковая |
Работает в автоматическом режиме |
||||||
|
Питание |
|||||||
|
Питание двигателя (Вт/ Гц) |
3х 380 / 50 |
Питание освещения (Вт/ Гц) |
220 / 50 |
||||
|
Мощность общая электрическая - 32кВт; |
|||||||
Вытяжка: Через пол
Внутренние габариты камеры (ДхВхШ): 12000x 7000х 6000 мм
Внешние габариты (ДхВхШ) : 12200x 8710x 6840 мм
Габариты ОСК






















