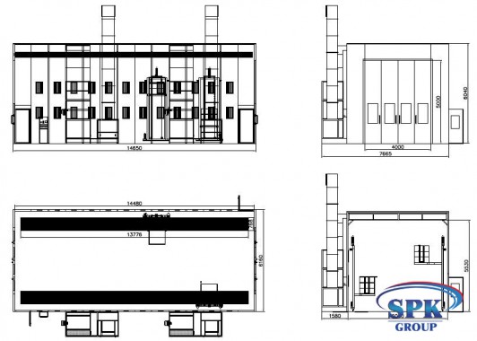
Окрасочно сушильная камера для блочных конструкций SPK 14x6x5 Россия-Германия
|
Размеры данной окрасочной камеры |
|||||
|
Размеры внутренние |
14000*6000*5500 mm |
Размеры внешние |
14160*6100*6000 mm |
||
|
Поток воздуха направлен |
Сверху вниз |
Вытяжка |
Сквозь пол |
||
|
Вытяжка в оск |
|||||
|
Материал решеток |
плоские полосы плоские, выполнены из стали и скрученная стальная арматура толщиной 10мм |
Размер канала |
13776*768 mm/1 канал |
||
|
Количество рядов решеток |
Два |
Кол-во каналов |
2 |
||
|
Покрытие решеток |
оцинкованное |
Макс. нагрузка |
1.000 кг /м. кв |
||
|
Кабина Камеры для блочных конструкций |
|||||
|
Конструкция кабины |
Каркас силовой |
Конструкция из стали |
Присут. |
||
|
Главная дверь |
|||||
|
Размеры ворот |
4000х5000 (ШхВ) |
Уплотнение |
Резина теплоизоляционная |
||
|
Материал исполнения |
оцинкованная сталь |
Разделение камеры |
Присут. |
||
|
Структура окон |
Отсут. |
Кол-во дверей |
2 |
||
|
Стеновые панели |
|||||
|
Толщина каждой панели, в mm |
80 |
Толщина стали, в mm |
0.6 |
||
|
Наполнитель панелей |
Минеральная вата |
Хар-ки наполнителя |
- Пожароустойчивый, - пропитан антисептиком |
||
|
Плот-сть заполнения минер. ватой |
112.0 кг / м3 |
|
|
||
|
Сервисная дверь |
|||||
|
Размеры дверей |
800*2000 (Ш * В) |
Кол-во дверей |
две |
||
|
Вид двери |
выхлопная |
Форма окон |
Прямоугольное, с уплотнением, выполненной из термоизоляционной резины |
||
|
Крыша в камере |
|||||
|
Форма и структура |
Прямая, сэндвич-панели толщ. 50мм. |
Р-ры дверей |
800х2000(ШхВ) |
||
|
Исполнение панели |
Минеральная вата |
Каркас |
Каркас из стали D8 |
||
|
Покрытие |
Порошковой покраской |
Потолочные фильтры, мод. |
SP-600G |
||
|
Свет в данной камере |
|||||
|
Верхний свет (45 °) |
4 лампы*16 плафонов, 64 лампы мощ-стью по 36 Вт |
Каркас крепления светильников |
Выполняется из стали |
||
|
Нижний свет (в панелях) |
36 плафонов Х 2 лампы, всего 72 лампы мощ-стью по 18 Вт |
Выпрямитель |
1 действие х2 лампы |
||
|
Описание Групп притока и вытяжки. Скорость потока воздуха от 0,23 до 0,3 м/сек |
|||||
|
Генератор размещается |
По левой стороне |
Генераторная группа |
Квадратная конструкция, стальная |
||
|
Обшивка |
Каркасы групп вытяжки и притока выполняются из теплоизоляционных панелей |
Регулирование потоков воздуха |
С использованием автоматической заслонки |
||
|
Поток воздуха притока направлен |
Вниз |
Поток воздуха вытяжки направляется |
Вверх |
||
|
Количество генераторов притока |
2 |
Количество генераторов вытяжки |
2 |
||
|
Хар-ки центробежного 2-ного вентилятора притока |
Производитель: Siemens |
Хар-ки вытяжного вентилятора |
Производитель: Siemens |
||
|
Мощ-сть вентилятора: 2х5,5 кВт |
Мощ-сть вентилятора: 1х7,5кВт |
||||
|
Произ-ность вентилятора: 55 000 м. куб/час |
Пр-ность вентилятора: 54 000 м. куб/час |
||||
|
Давление в данном вентиляторе 780 Па. |
Давление в данном вентиляторе 726 Па. |
||||
|
Приток воздуха управляется |
Автоматической заслонкой |
Вытяжной поток воздуха управляется |
Ручной заслонкой |
||
|
Система отопления данной оск |
|||||
|
Способ подогрева
|
Газовая горелка |
Кол-во теплообменников
|
2 |
||
|
Фильтрация |
|||||
|
Хар-ки Фильтра притока |
Карманчатый основной фильтр; Потолочный фильтр |
Хар-ки Фильтра вытяжки |
Конструкция предполагает наличие Стекловолоконного фильтра и угольного фильтра |
||
|
Система перемещения маляров-операторов в покрасочной камере SPK 14x6x5 |
|||||
|
Лифт площадки |
2 |
Питание |
3 по380 Вт/ 50Гц |
||
|
IP 65 - Система контроля технологических режимов |
|||||
|
Управляется |
Реле контроллером |
||||
|
Панель управления |
Оснащается следующими режимами: Окрашивание; нарастающее тепловое распыление; индикатор отказа; сушка до 65-и град-в, регулирование времени сушки; выключатели: освещения и питания; метр часов; чрезвычайная остановка; термостат |
||||
|
Питание в камере |
|||
|
Питание двигателей |
3 по 380 Вт/ 50Гц |
Питание освещения |
50Гц 220 Вт |
|
Общая мощ-ть 39 кВт |
|||
Внутренние габариты камеры (ДхВхШ): 14000x6000x5500
Внешние габариты (ДхВхШ) : 14160x6100x6000
Габариты ОСК










