Окрасочно-сушильная камера для металлоконструкций SPK-12.6.5 Россия
| Габариты данной камеры | |
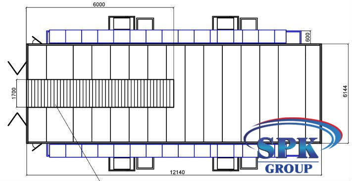
| Внешние, мм | 12000х6000х5000 |
| Внутренние габариты, мм | 12144х8896х5500 |
| Продув | Вертикальный |
| Отвод воздуха | Сквозь траншеи |
| Кабина камеры | |
| Конструкция | Прямая |
| Выполнение из стали | Да |
| Стальная рама | Да |
| Толщина стеновой панели, мм | 50 |
| Толщина окрашенной панели, мм | 0.5 |
| Изоляция торцов | С обеих сторон |
| Основные двери | |
| Размеры (ШхВ) / число | 4200х500/ 1 |
| Число створок | 4 |
| Конструкция | Распашные ворота |
| Сервисные двери | |
| Размеры, мм | 800х2000 |
| Размещение | С 2-х сторон |
| Конструкция окна | Окно имеет резиновый уплотнитель по периметру |
| Крыша | |
| Наличие стальной рамы | Да |
| Метод обработки несущей рамы потолочного фильтра | Окрашивание |
| Материал конструкции крыши | Стальная |
| Несущая рама потолочного фильтра | Стальная С-образная, материал - сталь D8 |
| Панели | EPS |
| Модель потолочных фильтров | SP-600G |
| Стенные панели (заполнены теплоизоляционной пеной, с 2-х сторон) | |
| Наполнение | EPS |
| Плотность заполнения, г/м3 | 19.0 |
| Толщина панели, мм | 70 |
| Толщина стальных панелей | 0.476 |
| Осветительная система | |
| Потолочное освещение | 16 светильников х 4 лампы = 64 лампы, 36 Вт, лампы Philips |
| Боковое освещение | 32 светильника х 2 лампы = 64 лампы, 36 Вт, лампы Philips |
| Материал коробки светильника | Сталь |
| Схема действия выпрямителя | для 2-х ламп единый |
| Мощность освещения общая, Вт | 4608 |
| Приточно-вытяжная вентиляция | |
| Конструкция генераторной группы фильтров | Квадратная, материал выполнения - сталь |
| Размещение генераторов | С 2-х сторон |
| Панели отсеков |
Панель имеет повышенную прочность, отсек приточной вентиляции: панели выполнены из (EPS), тепловой отсек: панели выполнены из полиуретана (PU), отсек вытяжной вентиляции: панели произведены из EPS-панелей |
| Заслонка для перехода из фазы окраски в фазу сушки | Пневматическая |
| Кол-во генераторных групп притока + вытяжки | 4+4 |
| Вход/выход воздуха | Верхний боковой/верхний задний |
| Описание притяжного вентилятора | |
| Центробежный сдвоенный вентилятор | |
| Модель | Siemens 4.2L |
| Мощность (кВт) | 4*2 вентилятора |
| Производительность (м3/час) | 100.000 |
| Давление (Па) | 780 |
| Характеристики вытяжного вентилятора | |
| Модель | Siemens -560-Н |
| Мощность (кВт) | 7,5*1 вентилятор |
| Производительность (м3/час) | 84.000 |
| Давление (Па) | 426 |
| Тепловая система в окрасочной форме | |
| Способ нагрева | Нагрев при помощи газовой горелки |
| Количество тепловых агрегатов | 4 горелки |
| Модель | R40; однорежимная |
| Структура теплообменника горелки | Многоходовой; взрывозащищенное |
| Количество теплообменников | 4 |
| Производительность, кКал/час | 260.000 |
| Дымоход | 4 прямых отрезка, 2 колена |
| Фильтрация воздуха в камере | |
| Фильтры на входе | Карманчатый пред-фильтр и потолочный фильтр |
| Фильтрация на выходе | Стекловолокнистый фильтр, угольный М-образный фильтр |
| Пульт управления SPK | |
| Панель управления включает: |
Режим окраски без подогрева/ с подогревом, режим сушки, таймер сушки, индикатор неисправности, термостат, счетчик часов работы, выключатель освещения, кнопка аварийной остановки, выключатель питания |
| Укладка проводки | В кабель-каналах |
| Способ управления | Реле |
| Запуск двигателя приточного вентилятора | При полном давлении |
| Запуск двигателя вытяжного вентилятора | |
| Электропитание | |
| Мощность и фазы двигателя | 3х380 В, 50 ГЦ |
| Мощность и фазы освещения | 1х220 В, 50 Гц |
| Общая мощность потребления (кВт) | 69 |
| Дополнительно | |
| Стекло | Прозрачное закаленное стекло толщ. 0.5 мм |
На нашем сайте вы можете ознакомиться с техническими характеристиками покрасочной камеры для металлоконструкций, а также посмотреть чертежи.
Канал
Внутренние габариты камеры (ДхВхШ): 12144х8896х5500
Внешние габариты (ДхВхШ) : 12000х6000х5000
Габариты ОСК
Внутренние габариты камеры (ДхВхШ): 12144х8896х5500
Внешние габариты (ДхВхШ) : 12000х6000х5000
Габариты ОСК









