Окрасочно сушильная камера для сварных металлоконструкций SPK 12x5x5
Специфика оборудования
| Размеры | |||
| Внутренние размеры, мм | 12000х5000х5000 | Внешние размеры, мм | 12144х7400х5400 |
| Поток воздуха | С направлением - сверху вниз | Вытяжка | Проходит через канал |
| Напольные решетки или боковая вытязка | |||
| Кол-во решеток | 3 ряда | Материал решеток | Сталь |
| Покрытие решеток | Оцинковка | Макс. усилие |
1400 кг/м2 |
| Кабина окрасочно сушильной камеры | |||
| Форма кабины | Прямая | Конструкция из стали | Есть |
| Въездные двери | |||
| Число дверей | Ворот, 1 шт. | Габариты дверей (ШхВ) | 4000х3500 |
| Конструкция ворот | Распашные | ||
| Стенные панели в камере | |||
| Толщ. панели | 80 мм | Структура панелей | С двух сторон панель обшивается стальными пластинами с заполнением теплоизоляционной пеной |
|
Заполнение панелей |
Минеральная вата | Толщина пластин из стали, мм | 0,5 |
| Плотность заполнения, г/м3 | 160 | Конструкция дверных окон | Окна овальной формы с теплоизоляционной резиной |
| Сервисная дверь | |||
| Габариты (ШхВ) | 800х200 | Количество, шт. | 2 |
| Расположение | Справа | Форма дверных окон | Овальные окна + теплоизоляционная резина |
| Крыша покрасочной камеры | |||
|
Форма |
Прямая | Материал | Оцинкованные стальные пластины |
| Материал каркаса | Сталь D8 |
Наличие стальной конструкции |
Есть |
| Исполнение панелей крыши | Минеральная вата | Потолочные фильтры | Модель фильтров SP-600G |
| Оборудование | |||
| Верхнее освещение | 16 плафонов х 4 лампы = 64 ламп, 36 Вт | Каркас для крепления светильников | Материал - сталь |
| Нижнее освещение | 20 плафонов х 4 лампы = 80 ламп, 36 Вт | Направление света | Горизонтальное рассеивание |
| Положение генераторов | С 2-х сторон | Конструкция генераторной группы | Стальная, форма квадратная |
| Исполнение каркаса групп притока и вытяжки | Каркас группы вытяжки, как и каркас группы приточных фильтров выполняется из Rock Wool панелей | Управление воздушными потоками | Пневматической заслонкой |
| Количество генераторных групп притока, шт. | 2 | Количество генераторных групп, шт. | 2 |
|
Характеристики вентилятора притока |
Центробежный вентилятор 2-ного действия | Характеристики вытяжного вентилятора |
Центробежный вентилятор 2-ого действия |
| Модель вентилятора Siemens 4.2L | Модель Siemens-450-H | ||
| Мощность 2х4 кВт | Мощность 1х5,5 кВт | ||
| Производительность 52000 м3/ч | Производительность 52000 м3/ч | ||
| Давление 726 Па | Давление 710 Па | ||
| Подогрев воздуха | |||
| Горелка |
- Газовая - Дизельная - Паровой / водяной калорифер - Электро |
Количество горелок, шт. | 2 |
| Модель | RS5 | Производительность | |
| Мощность | 350 кВт*2 | ||
| Фильтрация воздуха | |||
| Параметры фильтра притока | Основной фильтр карманной формы, а также потолочный фильтр | Параметры фильтра вытяжки | Стекловолоконный + угольный фильтры |
| Контроль и управление | |||
| Способ управления | Реле | ||
| Панель управления |
Режимы и переключатели: окрашивание; нарастающее тепловое распыление; сушка с регулятором времени Выключатели: освещения, питания; индикатор отказа; термостат; часовой метр; чрезвычайная остановка, а также температурный ограничитель. |
||
| Питание | |||
| Двигателя | 380 Вт х 350 Гц | Освещения | 220 Вт и 50 Гц |
| Общая мощность 33.0 кВт | |||
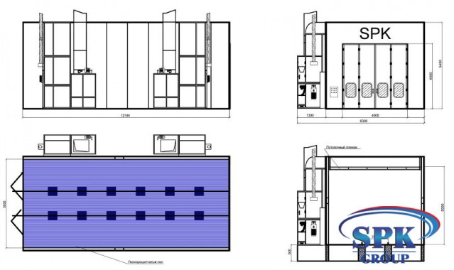
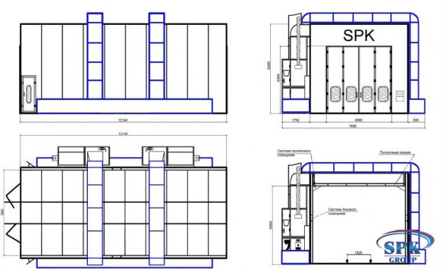
Канал
Внутренние габариты камеры (ДхВхШ): 12000x5000x5000
Внешние габариты (ДхВхШ) : 12144x7400x5400
Габариты ОСК
Внутренние габариты камеры (ДхВхШ): 12000x5000x5000
Внешние габариты (ДхВхШ) : 12144x7400x5400
Габариты ОСК



