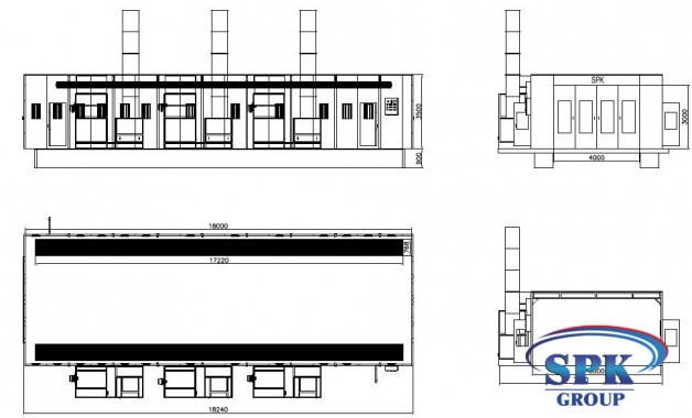
Окрасочно сушильная камера для труб SPK 18х6х3
|
Габариты камеры |
|||||
|
Внутренние размеры, мм |
18000x6000х3000 |
Внешние размеры, мм |
18160x6160x3450 |
||
|
Поток воздуха |
С направление –вниз |
Вытяжка |
Ч/з пол |
||
|
Вытяжка |
|||||
|
Кол-во каналов |
2 шт. |
Размер канала, mm/канал |
16000*760 |
||
|
Решетки, число рядов |
2 ряда |
Материал решеток |
стальные плоские полосы со скрученной стальной арматурой толщ. 10 мм |
||
|
Покрытие решеток |
Оцинковка |
Нагрузка максимал. |
1.000 кг/м2 |
||
|
Кабина |
|||||
|
Конструкция |
Каркас силовой |
Наличие стальной конструкции |
v |
||
|
Главная дверь |
|||||
|
Количество дверей в камере, шт. |
2 |
Р-ры ворот, (ШхВ) |
4000х3000 |
||
|
Материал |
Оцинкованная сталь |
Конструкция окон |
сервисные |
||
|
Разделение камеры |
- |
Уплотнение |
Резина теплоизоляционная |
||
|
Стеновые панели |
|||||
|
Толщ. панели |
80мм |
Толщина стали |
0.6мм |
||
|
Наполнитель панелей, плотность заполнения |
Вата минеральная/ 36 кг/куб.м |
Св-ва наполнителя |
Пропитан антисептиком, негорючий |
||
|
Плотность заполнения |
36 кг / куб.м |
|
|
||
|
Сервисная дверь |
|||||
|
Кол-во, шт. |
2 |
Размеры дверей(ШхВ) |
800 *2.000 |
||
|
Расположение |
Справа |
Окно |
сервисное |
||
|
Крыша |
|||||
|
Форма и состав |
Прямая, сэндвич панели |
Каркас |
Стальной силовой |
||
|
Конструкция потолка с потолочными фильтрами |
сталь D8 |
Покрытие каркаса |
Покраска порошковая |
||
|
Материал панели крыши |
Вата минеральная |
Потолочные фильтры |
Модель фильтров SP-600G |
||
|
Осветительная система камеры |
|||||
|
Верхний свет (45 гр.) |
24 плафона х 4 лампы = 104 лампы, мощность лампы 36Вт |
Каркас для крепления светильников |
из стали |
||
|
Нижний свет (встроен в панели) |
24 плафона х 2 лампы = 48 ламп, мощность лампы18Вт |
|
|
||
|
Выпрямитель |
1 действие Х 2 лампы |
|
|
||
|
Характеристики приточных и вытяжных групп |
|||||
|
Расположение генератора |
Слева |
Исполнение генераторной группы |
Квадратная конструкция, материал - сталь |
||
|
Обшивка обеих групп |
Каркас из панелей |
Регулирование потоков воздуха |
Автоматической заслонкой |
||
|
Количество генераторов притока, шт. |
3 |
Количество генераторов вытяжки, шт. |
3 |
||
|
Поток воздуха притока направлен |
Сверху вниз |
Воздушный поток вытяжки направлен |
Снизу вверх |
||
|
Хар-ки вентилятора притока |
Центробежный, двойного действия |
Хар-ки вытяжного вентилятора |
Центробежный, двойного действия |
||
|
Пр-во Siemens |
Пр-во Siemens |
||||
|
Мощность вентилятора 2х4 кВт |
Мощность вентилятора 1х5,5 кВт |
||||
|
Производительность вентилятора: 24 000 м³/час |
Производительность вентилятора: 24 000 м³/час |
||||
|
Давление 780 Па. |
Давление 726 Па. |
||||
|
Управление притоком воздуха |
Автоматическая заслонка |
Управление вытяжным воздушным потоком |
Ручная заслонка |
||
|
Система подогрева в камере |
|||||
|
Способ подогрева |
-Газовая горелка - дизельная горелка, -вода, - пар |
Количество 2 шт. |
3 теплообменника |
||
|
Модель горелок |
R 5 |
Производительность горелки |
260 кВтх3 |
||
|
Конструкция теплообменника |
Мультицикл; антивзрывчатое отверстие |
||||
|
Фильтрационная система |
|||||
|
Фильтр притока |
Основной фильтр формы кармана + Потолочный фильтр |
Фильтр вытяжки |
В конструкцию входят стекловолоконный и угольный фильтры |
||
|
Система контроля технологических режимов. IP 65 |
|||||
|
Способ управления |
Реле контроллер |
||||
|
Панель управления |
Режимы: 1. - Окрашивание; 2. - возрастающее температурное распыление; 3. – сушка с возможностью регулирования времени, 4. - выключатель освещения; 5. - индикатор отказа; 6. - термостат; 7. - метр часов; 8. - выключатель питания; 9. - чрезвычайная остановка; |
||||
|
Питание |
|||
|
- двигателя |
- |
Питание освещения |
220 Вт/ 50Гц |
|
Общая мощ-сть 45 кВт Рабочая мощ-сть 24 кВт |
|||
Внутренние габариты камеры (ДхВхШ): 18000х6000х3000
Внешние габариты (ДхВхШ) : 18160х6160х3450
Габариты ОСК







