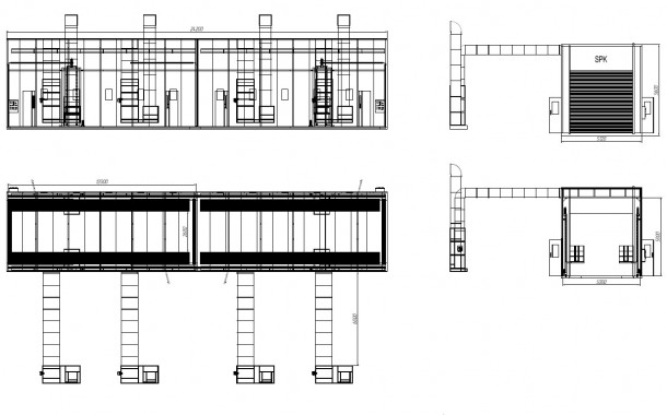
Покрасочно-сушильная камера проходного типа SPK-24.5.5 г. Набережные Челны
Параметры окрасочно-сушильной камеры проходного типа
|
Размеры |
|||||
|
Внутренние размеры |
24100x5000х5000 mm |
Внешние размеры |
24300x5120x5600 mm |
||
|
Количество независимых секций |
2 |
|
|
||
|
Воздушный поток направляется |
Направление вниз |
Вытяжка |
Ч-з пол |
||
|
Вытяжка |
|||||
|
Каналы |
4 канала |
Габариты канала |
11/480*760 mm |
||
|
Ряды решеток |
4 ряда |
Исполнение |
Скрученная арматура из стали толщ. 10 мм + стальные полосы плоской формы |
||
|
Покрытие |
Оцинковка |
Нагрузка макс. |
1.000 кг / м2 |
||
|
Кабина |
|||||
|
Конструкция |
Силовой каркас |
Конструкция стальная |
Присут. |
||
|
Главная дверь. 3 шт |
|||||
|
Тип |
Подъемно-секционная |
Размеры ворот |
4000х4000 (ШхВ) |
||
|
Материал исполнения |
Сталь оцинкованная |
Разделение камеры |
Нет, без окон |
||
|
Стеновые панели |
|||||
|
Толщина |
60 мм. |
Толщ/ стали |
0,60 мм |
||
|
Наполнитель в каждой панели |
Вата минеральная |
Описание наполнителя в панели |
Негорючий с пропиткой антисептиком с плот-стью заполнения 32,0 кг/ куб. м |
||
|
Дверь сервисная |
|||||
|
Кол-во дверей |
4 шт. |
Габариты (мм) (ШВ) |
800 х 2000 |
||
|
Расположение |
2 справа, 2 слева |
Описание |
Окно овальной формы с прослойкой теплоизоляционной резины |
||
|
Крыша |
|||||
|
Описание |
Прямая, в основе крыши - сэндвич-панели |
Наличие стальной конструкции |
Стальной силовой каркас |
||
|
Описание каркаса с закрепленными на нем фильтрами |
стали D8 |
Покрытие каркаса |
Каркас покрывается порошковой покраской |
||
|
Исполнение |
Минеральная вата |
Наименование фильтра потолка |
SP-600G |
||
|
Осветительная система в SPK-24.5.5 |
|||||
|
Потолочный свет (45 гр) |
32 плафона Х4 лампы = 128 ламп Х36 Вт |
Материал каркаса |
Сталь в основе |
||
|
Панельный свет |
32 плафона Х 2 лампы = 64 лампы Х18 Вт |
|
|
||
|
Выпрямитель |
1 действие Х две лампы |
Общая мощность |
5760 Вт |
||
|
Описание приточно-вытяжой группы |
|||||
|
Генератор |
Слева |
Конструкция генераторной группы |
Стальная квадратная |
||
|
Обшивка |
В основе каркаса - EPS панели |
Управление воздушными потоками |
Автоматической заслонкой |
||
|
Количество генераторов притока |
4 шт |
Количество генераторов вытяжки |
4 шт |
||
|
Направление воздушного потока в камере |
Вниз |
Направление потока воздуха в вытяжке |
Вверх |
||
|
Приток: центробежный двойной вентилятор |
Искро-взрывозащищенное исполнение (ЕХ) |
Вытяжной центробежный двойной вентилятор |
Искро-взрывозащищенное исполнение (ЕХ) |
|
Значение мощности: 7,5 кВт |
Значение мощности: 7,5 кВт |
||
|
Значение производительности: 96000 м³/час |
Значение производительности: 96000 м³/час |
||
|
Давление 760Па. |
Давление 731Па. Ременной привод |
||
|
Регуляция притока |
Автоматическая заслонка |
Регуляция вытяжного потока воздуха |
Ручная заслонка |
|
Описание системы отопления |
|||
|
Способ
|
Горелка: дизельная, газовая. Нагрев: водяной или паровой нагрев |
Число теплообменников |
4 шт. |
|
Модель газовых горелок |
R5/ R5G |
Производительность горелок |
920кВт |
|
Структура теплообменника |
Мультицикл; антивзрывчатое отверстие |
||
|
Мощность (без рекуператора) |
920кВт |
Мощность (с рекуператором) |
480кВт |
|
Фильтрационная система |
|||
|
Конструкция приточного фильтра |
Основной фильтр карманчатой формы + Потолочный |
Конструкция фильтра вытяжки |
В системе: угольный и стекловолоконный |
|
Управление технологическими режимами IP 65 |
|||
|
Управляющая панель |
Режимы: окрашивание, тепловое распыление с возрастанием, сушка до 60-ти гр-в, регулирование времени фазы сушки, выключатель осветительной системы, индикатор отказа, термостат, аварийная остановка, метр часовой |
||
|
Регулировка и управление |
Контроллер реле |
||
|
Система питания |
|||
|
Пит. двигателя |
3х 380 Вт/ 50Гц |
Пит. освещения |
220 Вт/ 50Гц |
|
Общая мощ-сть 15 - 68 кВт |
|||



























































