Окрасочно-сушильная камера для окраски поездов SPK 30.7.7 Россия
|
Размеры |
|||
|
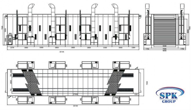
Внутренние размеры |
30000x7000x700 мм |
Внешние размеры |
30144x9646x7600 мм |
|
Поток воздуха |
Нисходящий сверху |
Вытяжка |
Через канал |
|
Напольные решетки |
|||
|
Кол-во каналов |
2 канала |
Размер каналов |
760/27640мм/канал |
|
Кол-во решеток |
2 ряда решеток |
Материал решеток |
Сталь |
|
Покрытие решеток |
Оцинковка |
Максимальное усилие |
500-800кг/м3 |
|
Кабина |
|||
|
Конструкция |
Прямая |
Наличие стальной конструкции |
Есть |
|
Въездные двери |
|||
| Количество дверей | 2 ворот | Размеры дверей | 5000х5600 (ШхВ) |
| Структура дверей | Роль-ставни | ||
|
Стенные панели Стальные сэндвич панели заполненные теплоизоляционной пеной |
|||
|
Толщина Панели |
70мм |
Структура панелей |
Панель обшита с двух сторон стальными пластинами между которыми находится теплоизоляционная пена |
|
Наполнитель |
Минеральная вата |
Толщина стальных пластин |
0,5мм |
|
Плотность заполнения |
160г/м³ |
Структура дверных окон |
Овальные окна с теплоизоляционной резиной |
|
Сервисная дверь |
|||
|
Количество дверей |
2 |
Размеры дверей |
800х2000(ШхВ) |
|
Расположение |
С двух сторон |
Структура дверных окон |
Овальные окна с теплоизоляционной резиной |
|
Крыша покрасочной камеры |
Оцинкованные стальные пластины |
||
|
Структура крыши |
Прямая |
Наличие стальной конструкции |
Есть |
|
Конструкция потолка с креплением потолочных фильтров |
Каркас из стали D |
||
|
Материал панелей крыши |
Минеральная вата |
Потолочные фильтры |
SP-600G |
|
Освещение (Покрасочная камера для вагонов) |
|
||
|
Верхний свет |
36 плафона по 4 лампы= 144лампы по 36Вт |
Каркас крепления светильников |
нет |
|
Нижний свет |
48 плафона по 4 лампы= 192лампы по 36Вт |
Направление света |
Вертикальное |
|
Выпрямитель |
1 действие для 2 лам |
||
|
Общая мощность освещения |
12096Вт |
||
|
Группы притока и вытяжки (Окрасочно сушильная камера для вагонов) |
|||
|
Положение генераторов |
С двух сторон |
Конструкция генераторной группы |
Квадратная Стальная конструкция |
|
Обшивка групп притока и вытяжки |
каркас группы вытяжки выполнена из Rock Wool панелей каркас группы притокавыполнена из Rock Wool панелей |
Регулировка потоков воздуха |
Пневматическая заслонка |
|
Количество генераторных групп притока |
8группы |
Количество генераторных групп вытяжки |
8группы |
|
Направление потока воздуха притока |
Направление потока воздуха вытяжки |
||
|
Модель вентилятора притока |
Центробежный вентилятор двойного действия |
Модель вытяжного вентилятора |
Центробежный вентилятор двойного действия |
|
Siemens 4.2L |
Siemens -450-H |
||
|
2х4кВт |
1х5,5кВт | ||
|
Производительность: 200000 м³/ч |
Производительность 184000 м3/ч |
||
|
Давление 800 Па. |
Давление 426 Па. Ременной привод |
||
|
Управление притоком воздуха |
Управление вытяжным потоком
|
Оборудован ручной заслонкой |
|
|
Подогрев воздуха |
|||
|
Горелка |
Газовая |
Кол-во горелок |
8 горелок |
|
Модель |
RS5; одноступенчатая |
Производительность |
260 000Кал/час |
|
Мощность |
325кВт/ч |
||
|
Фильтрация |
|||
|
Фильтр притока |
Основной фильтр карманной формы;Потолочный фильтр |
Фильтр вытяжки |
Стекловолоконный фильтр, угольный фильтр |
|
Система контроля |
|||
|
Способ управления |
Реле |
||
|
Панель управления |
окрашивание; возрастающее температурное распыление; сушка;регулировка времени сушки; выключатель освещения; индикатор отказа; термостат; метр часов; выключатель питания; чрезвычайная остановка; температурный ограничитель. |
||
|
Питание |
|||
|
Питание двигателя |
3х380 вольт 50Гц |
Питание освещения |
220 вольт 50Гц |
|
Общая мощность 124кВт |
|||
Обычные неисправности и возможные способы их устранения
| Обычные неисправности |
Возможные способы устранения |
|
1. Вентиляторы останавливаются после пуска |
Проверьте выключатели и контроллеры двигателя, измените установленное текущее значение на правильное. |
|
2. Медленно повышается температура во время горячей сушки. |
Проверьте вентиляционную решетку, приведите ее в правильное рабочее положение |
|
3. Давление в боксе выше, чем необходимо при окраске напылением. |
Замените фильтры для отработавшего воздуха. |
|
4. Отрицательное давление в боксе во время окраски |
Замените впускные воздушные фильтры. |
Внутренние габариты камеры (ДхВхШ): 30000x7000x7000
Внешние габариты (ДхВхШ) : 30144x9646x7600
Габариты ОСК

