Тупиковая окрасочно-сушильная камера для вагонов и локомотивов SPK-32.7.7 РОССИЯ
|
Размеры |
||||||||
|
Внутренние (mm) |
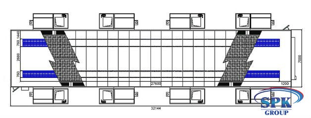
32000x7000x7000 |
Внешние (mm) |
32 144x9 646x7 600 |
|||||
|
Поток воздуха |
С направлением сверху вниз |
Вытяжка |
Ч/з два канала |
|||||
|
Канал |
||||||||
|
Количество |
2 канала |
Р-р канала |
27 600х760 mm/канал |
|||||
|
Кол-во решеток |
По два ряда |
Материал |
стальные плоские полосы+скрученная стальная арматура толщ. 10мм |
|||||
|
Покрытие |
Оцинкованное |
Наибольшая нагрузка |
От 500 до 800 кг/м3 |
|||||
|
Кабина окрасочной камеры |
||||||||
|
Конструкция |
Выпуклая |
Конструкция из стали |
+ |
|||||
|
Главная дверь |
||||||||
|
Количество створок |
Одни рольставни |
Размер |
5.000х5.600 (Шир.хВыс.) |
|||||
|
Материал выполнения |
Оцинкованная сталь |
|
|
|||||
|
Структура окон |
|
|
|
|||||
|
Стенные панели |
||||||||
|
Толщина |
70 mm |
Толщина стали |
0,5 mm |
|||||
|
Наполнитель панелей |
Минеральная вата |
|
|
|||||
|
Плотность заполнения |
19грамм/м³ |
|
|
|||||
|
Сервисная дверь |
||||||||
|
Число дверей |
2 |
Р-ры дверей (ШхВ) |
800х2.000 |
|||||
|
Расположение |
Справа и слева |
Структура окон в двери |
окна в форме овалов с теплоизоляционной резиной |
|||||
|
Крыша |
Материал исполнения крыши - стальные цинкованные пластины |
|||||||
|
Структура |
Прямая |
Оснащение стальной конструкцией |
Да |
|||||
|
Конструкция потолка с закрепленными на нем потолочными фильтрами |
Каркас производится из D8 стали |
|
|
|||||
|
Материал панели на крыше |
Минеральная вата |
Потолочные фильтры |
Модель SP-600G |
|||||
|
Освещение в камере SPK |
||||||||
|
Верхний свет |
40 плафонов по 4 лампы, в итоге 160 ламп мощ-стью по 36Вт |
Каркас крепления для светильников |
Выполняется из стали |
|||||
|
Нижний свет |
34 плафона, каждый из которых оснащен 4-мя лампами, всего136 ламп по 36 Вт |
|
|
|||||
|
Выпрямитель |
для двух ламп одно действие |
|
|
|||||
|
Общая мощность освещения |
10.656Вт |
|
|
|||||
|
Группы притока/ вытяжки в камере (воздухообмен 120 крат/час) |
||||||||
|
Положение генератора |
С правой стороны |
Конструкция генераторной группы фильтров |
Квадратная конструкция, производится из стали |
|||||
|
Обшивка групп приточных/ вытяжных фильтров |
каркас группы вытяжных фильтров/ приточной группы из EPS панелей
|
Регулирование воздушных потоков в |
Пневматическая заслонка |
|||||
|
Кол-во генераторов притока |
8 |
Кол-ство генераторов вытяжки |
8 |
|||||
|
Параметры вентилятора притока |
Центробежный вентилятор, имеющий 2ное действие |
Параметры вытяжного вентилятора |
Центробежный вентилятор, имеющий 2йное действие |
|||||
|
Модель вентилятора Siemens 4.5M |
Модель вентилятора Siemens-710-H |
|||||||
|
Мощ-сть 2х5,5кВт |
Мощ-сть 1х7,5кВт |
|||||||
|
Производит-ность: 188 000 м³/ч |
Пр-сть 186 000 м3/ч |
|||||||
|
Давление 780Па. |
Давление 426Па. С ременным приводом |
|||||||
|
Управление притоком воздуха |
|
Управление вытяжным потоком воздуха |
Оборудуется ручной заслонкой |
|||||
|
Подогрев воздуха |
||||||||
|
Устройство для подогрева |
Дизельная/газовая горелка, паровой/водяной теплообменник, с функцией догрева |
Кол-во |
8 теплообменников |
|||||
|
Модель |
R5 |
Произв-нсть горелки |
260.000 кКал/ч |
|||||
|
Структура теплообменника включает |
антивзрывчатое отверстие; Мультицикл; |
|
|
|||||
|
Дымоход |
Отсут. |
Материал дымохода |
Отсут. |
|||||
|
Фильтрация |
||||||||
|
Фильтр притока включает |
Основной фильтр имеет форму кармана; Потолочный фильтр |
Фильтр вытяжки включает |
Стекловолоконный и угольный фильтры |
|||||
|
Система контроля технологических режимов |
||||||||
|
Способ управления |
Реле |
|
|
|||||
|
Панель управления в камере включает: |
Окрашивание; температурное распыление с нарастанием; сушка до 80 градусов, индикатор отказа; регулировка времени сушки; термостат; выключатель питания; чрезвычайная остановка; метр часов; выключатель освещения; |
|||||||
|
Система перемещения операторов-маляров |
||||||||
|
Лифт площадка |
2 Подъемно-передвижные лифт площадки |
Питание |
380 вольт |
|||||
Внутренние габариты камеры (ДхВхШ): 32000x7000x7000
Внешние габариты (ДхВхШ) : 32144x9646x7600
Габариты ОСК




